1550 Union Road Unit# 43
$
989900
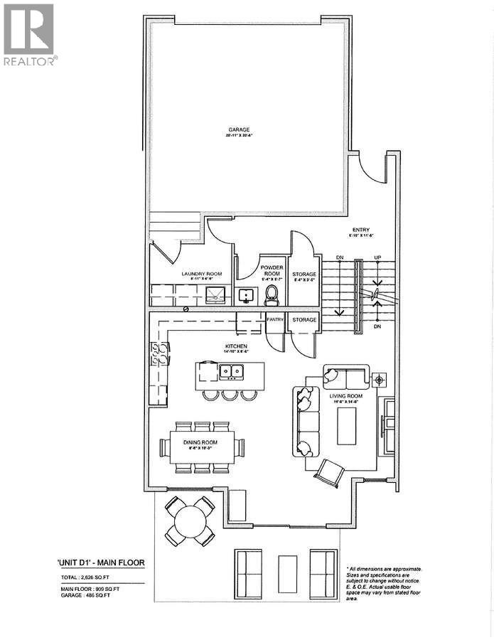
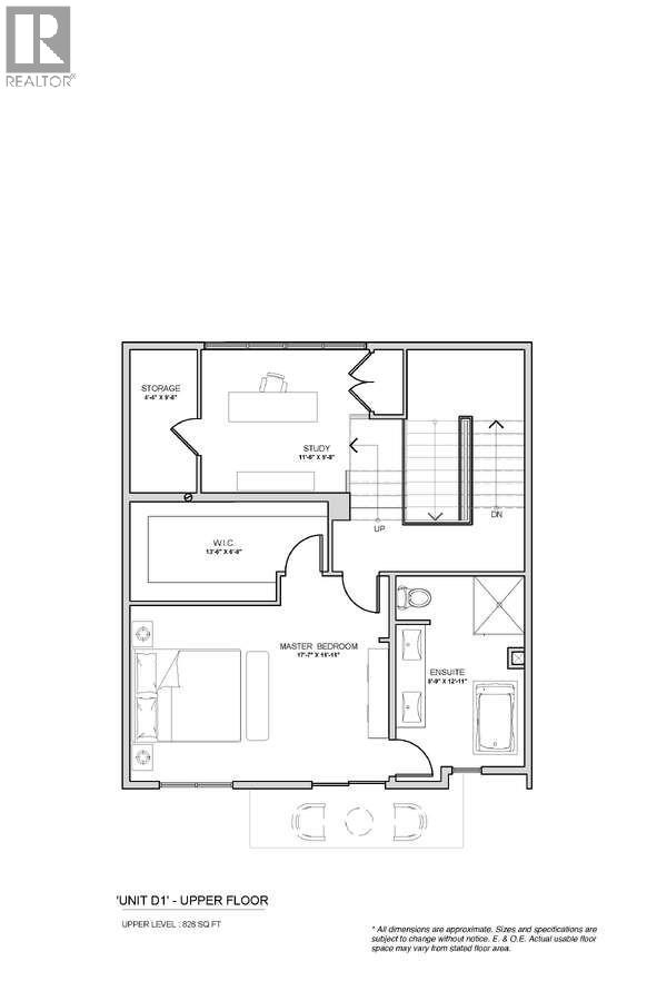
For more information, please click Brochure button. Discover Unit 43 – The Elderberry Plan at Pondside Landing. Experience 2,626 sq. ft. of bright, contemporary living in this stunning interior townhouse, finished in the sought-after Modern Farmhouse colour scheme. One of the last homes eligible for the GST incentive, this residence offers direct pond views and exceptional natural light throughout. The split-level design creates a spacious, functional layout featuring 3 bedrooms, 3 bathrooms, and a study. Enjoy three distinct outdoor spaces: a large deck off the main level, a private balcony from the primary suite (complete with 5-piece ensuite and walk-in closet), and a covered patio extending from the walkout basement. The main floor boasts an open-concept living area with a cozy gas fireplace, while the lower level includes two bright bedrooms and a family room that opens to the patio. The side-by-side double garage provides convenient access to a thoughtfully designed laundry room. Ceiling heights vary from 9' in the basement, 10' on the main floor, and 8' in the upper bedroom, reaching up to 11' in the study—enhancing the sense of space and light. Located just 10 minutes from downtown Kelowna and the airport, Pondside Landing offers a peaceful yet connected lifestyle surrounded by trails, ponds, and future community amenities, including Wilden Market Square and Wilden Elementary School. All measurements are approximate. (id:62999)



















































