Kelowna
2370 Stillingfleet Road Unit# 125
Residential
$
349900
2
Bedrooms
2
Bathrooms
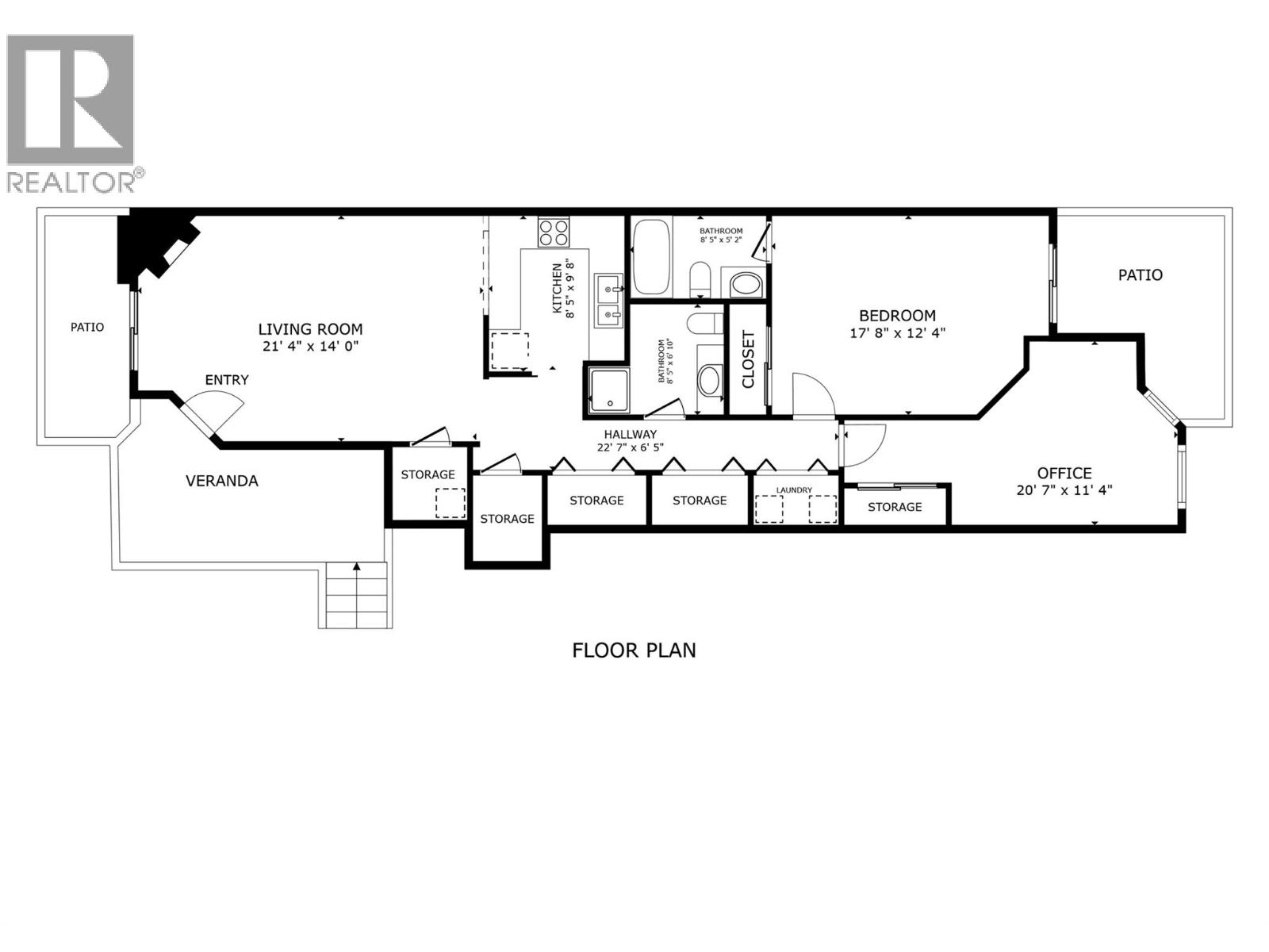
A 2 bedroom 2 bathroom TOWNHOME UNDER 350K in Kelowna South!!! You can't beat this location!! Steps to Starbucks, groceries, a pharmacy and much more! Open concept living room, dining room and kitchen. Cozy corner GAS FIREPLACE! Oversized primary bedroom features a 4 piece ensuite. 2 LARGE DECKS! Enjoy the gorgeous OUTDOOR POOL, BBQ AREA, and HOTTUB! No age restrictions! The SECURE UNDERGROUND PARKING, storage locker, pantry, amenities and pet friendly bylaws make this an INCREDIBLE OPPORTUNITY at an UNBEATABLE PRICE POINT! (id:62999)
View
Living Area
1155
SQ FT.
Land Size
Acres
Property Type
Single Family
Structure Type
Row / Townhouse
Roof Type
Floor Type
Sewer Type
Municipal sewage system
Lot Type
Exterior Type
Parking Spots
1
Stories
1.0
Security
Cooling
Central air conditioning
Heating
Forced air
Water
Municipal water
Year Built
1995
MLS
10369255

































